5783 Maxson Dr

Cypress, CA 90630

Floorplans
Gallery
Virtual tour
Sold
$1,125,000
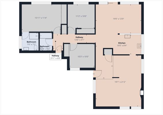
Bedrooms
3
Bathrooms
2
Square Ft.
1,534

PROPERTY

DESCRIPTION

This spacious and light-filled single story home offers 3 bedrooms, 2 bathrooms, and 1,534 sq. ft. of well-designed living space, nestled on a generous 6,000 sq. ft. lot. From the moment you arrive, you'll be captivated by the home's inviting curb appeal, complete with manicured lawns and thoughtfully landscaped planters. Step inside to an expansive living room with soaring vaulted ceilings, abundant natural light, and a cozy fireplace that brings warmth to both the living and dining areas. The open kitchen is a delight, featuring ample cabinetry, sleek Corian countertops, and a seamless flow to the family room, with picturesque views of the backyard. The large primary suite is a private retreat with its own ensuite bathroom, while two additional, well-sized bedrooms provide flexibility for family or guests. Freshly painted interiors, new luxury vinyl tile flooring, and plush carpet in the bedrooms make this home move-in ready. Modern upgrades likeRead MoreRead Less
Bedrooms
3
Bathrooms
2
Square Ft.
1,534
Lot Size
6,000

PROPERTY

Highlights

  • Garage
  • Basement
  • Yard
  • Golf Course
  • Pool
  • Mailbox

  • Sky Longue
  • Starbucks Bistro
  • Yoga/Aerobics Studio
  • Sky Longue
  • Starbucks Bistro
  • Yoga/Aerobics Studio

PROPERTY

Details

5783 Maxson Dr Cypress CA – 041 – Floor Plan

Contact Agent

Chase Whitney
Chase Whitney
REALTOR®
[email protected]1-714-622-7742

Are you interested in taking a tour of this home or do you have any real estate questions that you'd like to ask without any obligation? We invite you to click on the link below to schedule a 9-minute call with us, where we can assist you. Our family business follows a no-pressure policy, and we guarantee to provide you with accurate information without any undue pressure.

We look forward to hearing from you!

Chase Whitney
REALTOR®
Chase Whitney profile image
Please Select Date
Please Select Type

Listing

Details

5783 Maxson Dr, Cypress
CA 90630 (MLS #PW24232475)
Sold
$1,125,000
Bedrooms
3
Bathrooms
2
Square Ft.
1,534