$835,000
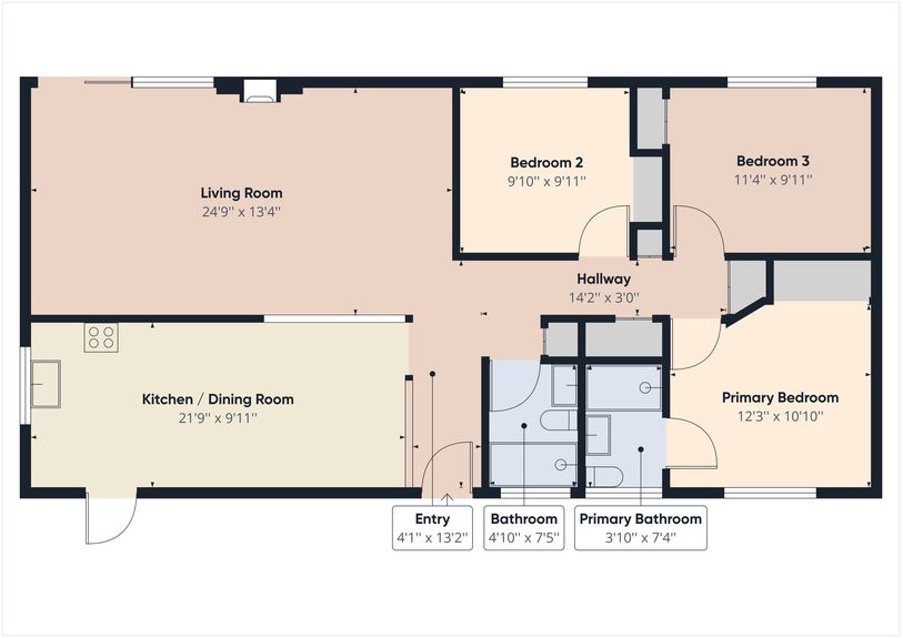
This charming single-story home in Imperial Estates is a wonderful find! With 3 bedrooms, 2 bathrooms, and 1,250 sf of living space on a 6,000 square foot lot, it offers plenty of room to stretch out and enjoy! As you step inside, you'll immediately notice the spacious living room with… Read Moreits abundance of natural light and cozy rock fireplace. The adjacent eating area is conveniently located next to the kitchen, which features wood cabinets and a gas cooktop. The easy-care laminate flooring and dual pane windows are additional highlights of this lovely home. The primary bedroom features an ensuite bathroom with a walk-in shower and tiled floor. There are 2 additional nicely sized bedrooms and a hall bathroom with a tub/shower combo and tile floor. You will enjoy the tranquil and private oversized backyard which offers plenty of grass, a shed for storage, and block wall fencing, it's the perfect place to relax and unwind. There's even direct access to the attached two-car garage for added convenience. Located in the highly-rated Cypress & Anaheim Union School District, this home is zoned for Morris Elementary, Lexington Junior High, Cypress High School, and the Nationally-Ranked Oxford Academy (testing requirements). It's also just a short distance to the nearby Oak Knoll Park and Cypress Community Center.Read Less
Video Tour
Virtual Tour
Things We Love About This Home
- Fresh Coat of Exterior Paint and Recently Painted Interior
- Interior Tract Location on One of the Quietest Streets in Cypress
- Upgraded Dual Pane Windows
Mortgage Calculator
Monthly Payment
$0
Perfect home finder
'VIP' Listing Search
Whenever a listing hits the market that matches your criteria you will be immediately notified.

Similar Listings
Confirm your time
Fill in your details and we will contact you to confirm a time.
Contact Form
Welcome to our open house!
We encourage you to take a few seconds to fill out your information so we can send you exclusive updates for this listing!

































